
BUDAPEST
PROJECT NR.4
HUNGARY
With LIMA DESIGN
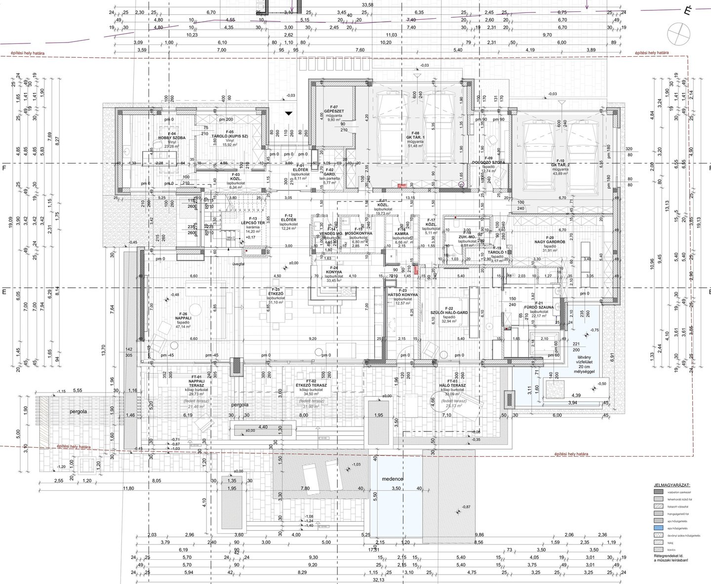
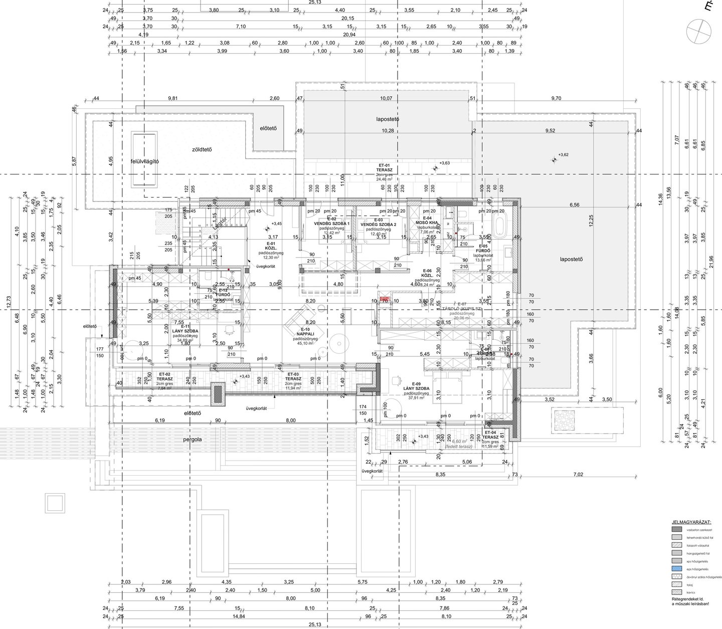
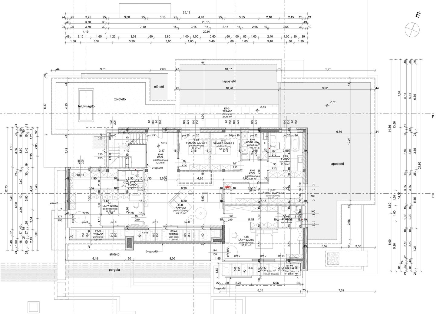
In this 450 m2 house project, I was part of the interior design team, responsible for shaping the overall spatial concept and material direction.
The goal was to create open, modern, and highly functional spaces for a family of four who wanted a luxurious yet comfortable home. We focused on large, seamless areas, natural light, warm textures, and a balanced combination of stone, wood, and clean plaster surfaces. The design vision aimed to feel premium without being overwhelming, with every room connected through a unified material palette and a strong architectural rhythm.


Interior Design of a 450 m2 house in Budapest.























