
FACULTY OF PHARMACEUTICAL SCIENCES
Project NR.5
BUDAPEST, HUNGARY
With LIMA DESIGN
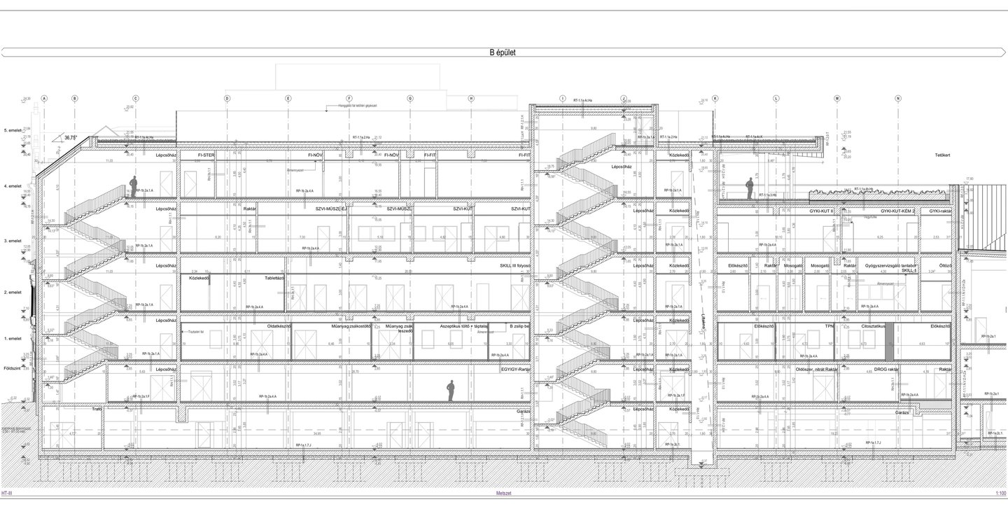
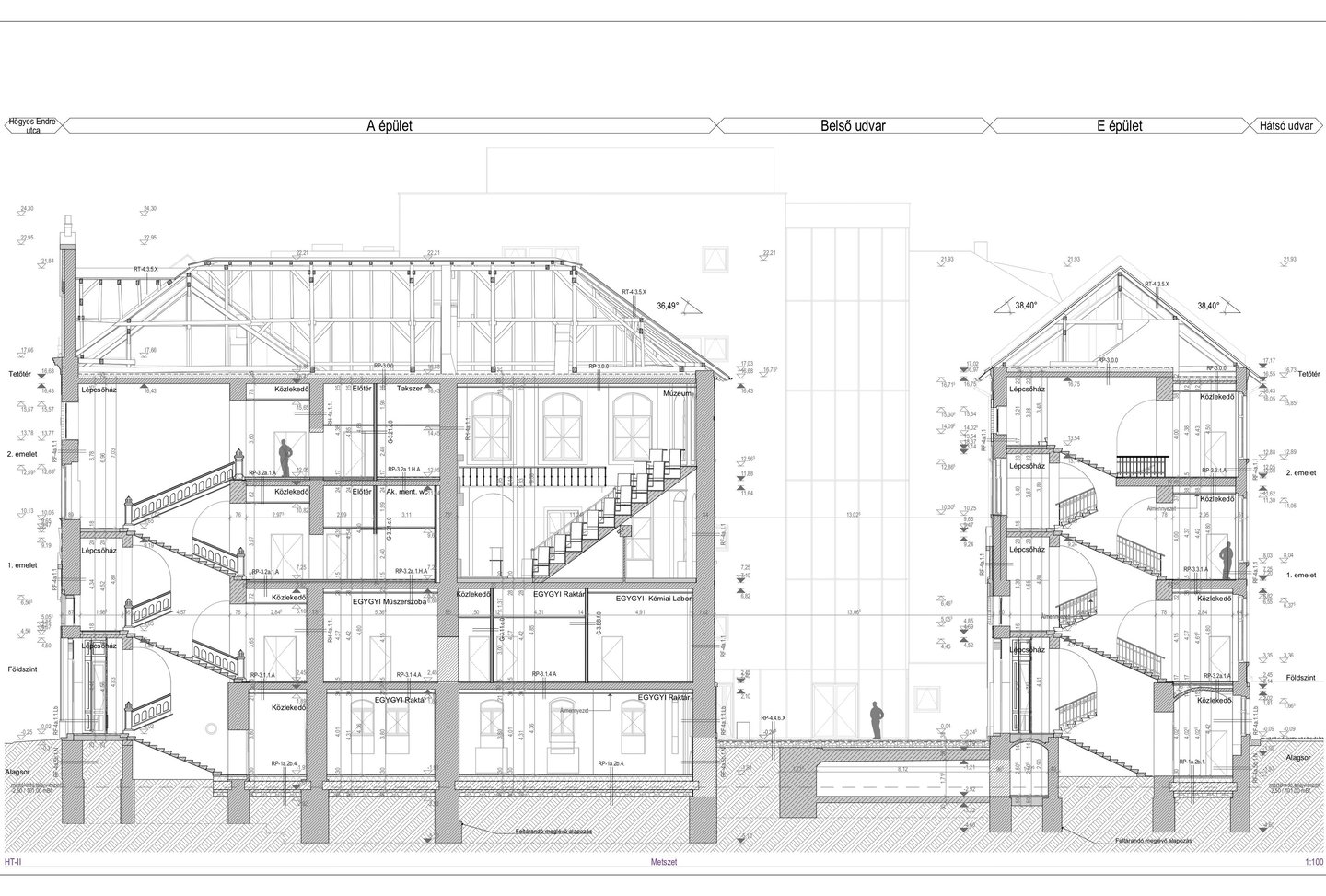
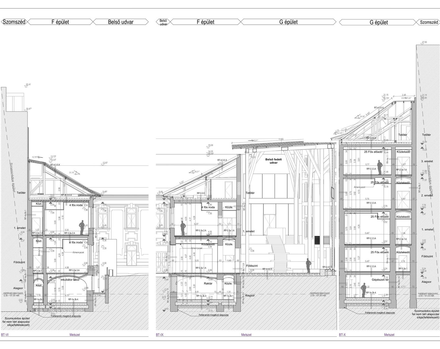
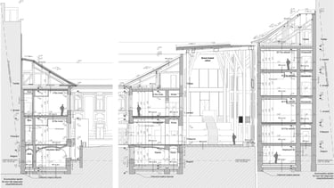
I contributed to the FACULTY OF PHARMACEUTICAL SCIENCES project during my time at Lima Design in Budapest, working on it from the initial concept phase through the end of the permission phase. The entire project was developed in a full BIM environment, which allowed us to coordinate complex functions and existing structures with precision. My responsibilities included understanding all functional, technical, and regulatory requirements of a pharmaceutical faculty in order to create a clean and efficient layout. The project consisted of two major parts: laboratory spaces and the educational (school) functions, designed in close collaboration with laboratory technicians. The work was made even more challenging by the need to adapt the design to existing historic buildings, with only limited new construction permitted, which required meticulous planning and careful BIM-driven coordination to achieve a functional and coherent layout.


Architectural design of a university faculty.





























