
APARTMENT BUILDING
Project NR.6
BUDAPEST, HUNGARY
With LIMA DESIGN
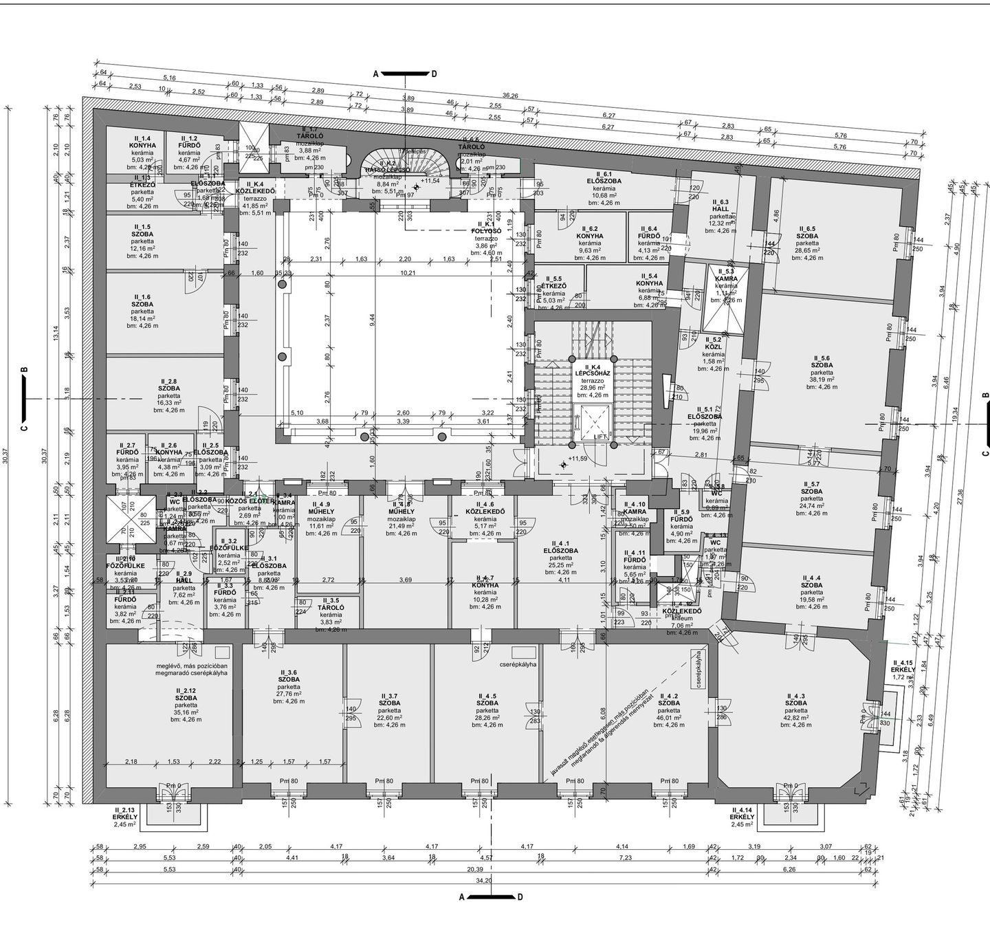
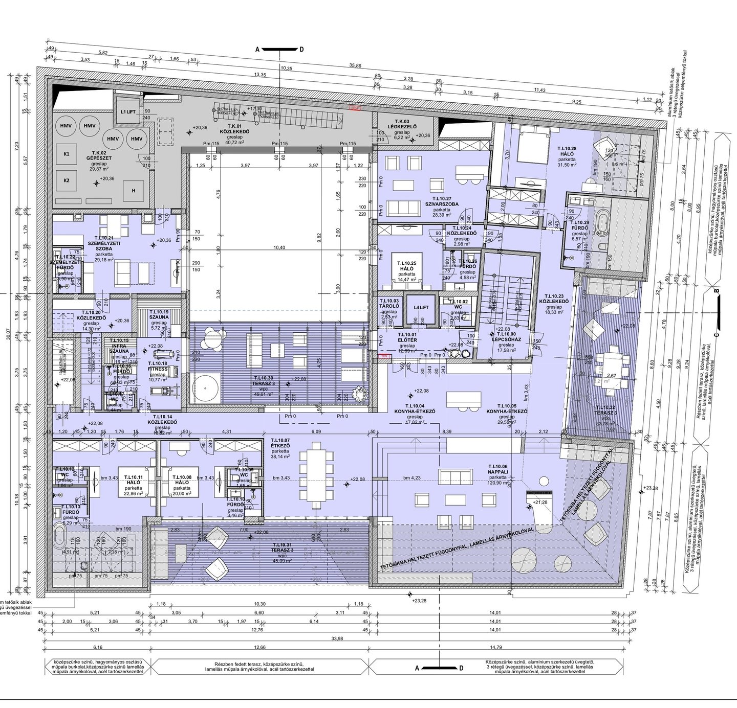
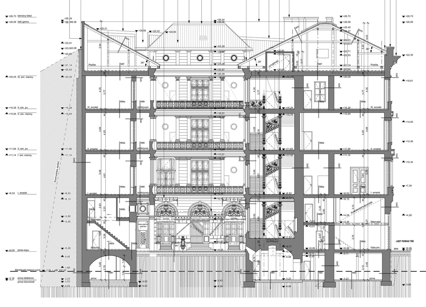
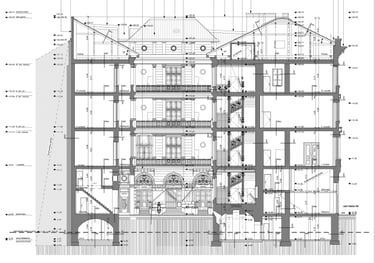
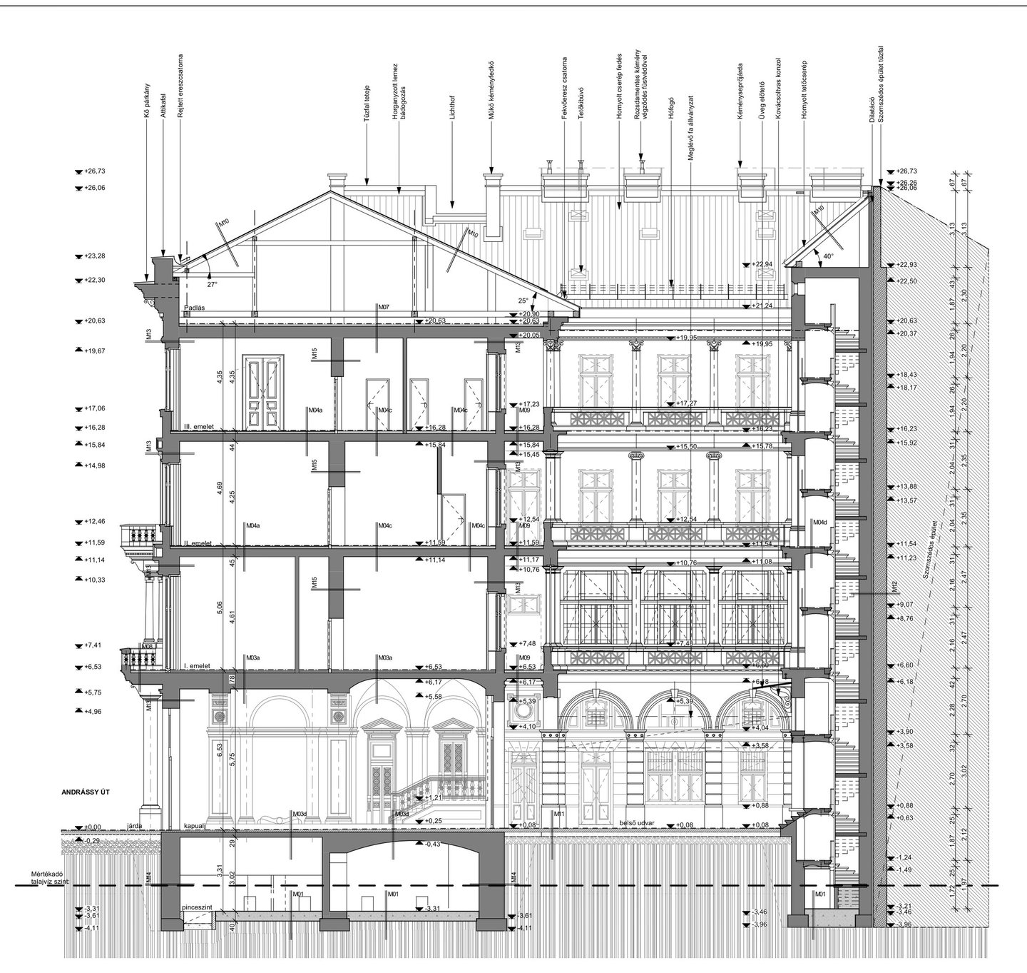
I contributed to the Apartment Building project during my time at Lima Design in Budapest, working on it from the permission phase through the end of the construction phase. The project was developed entirely in a full BIM environment, which allowed for precise coordination between complex building functions and the existing historical structure. My responsibilities included conducting on-site measurements in areas where the point cloud data was insufficient, creating the 3D model of the existing and new building, assisting with the floor plan design, and preparing the execution and detailed construction drawings.


Architectural design of an apartment building.





























