
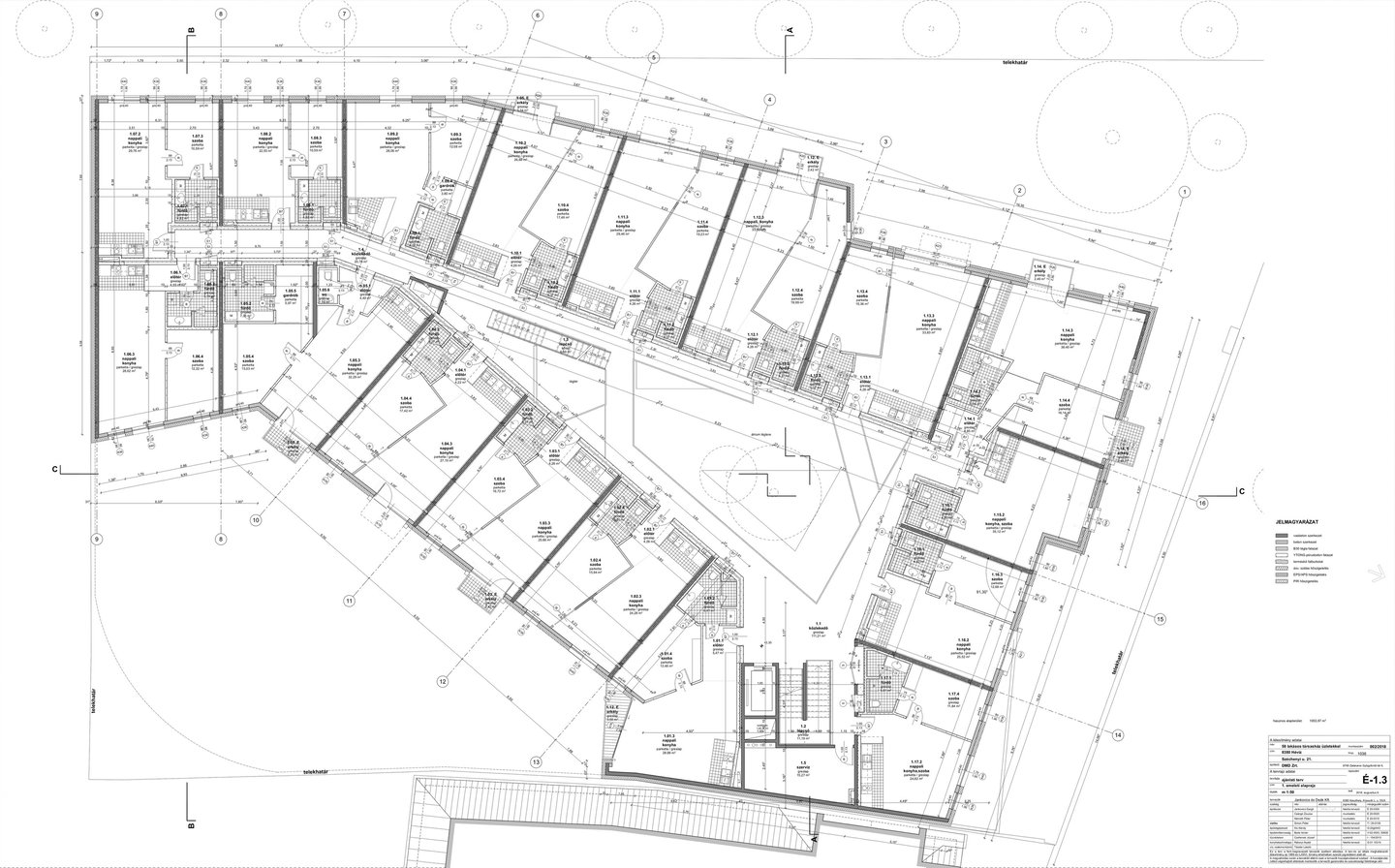
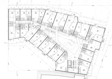
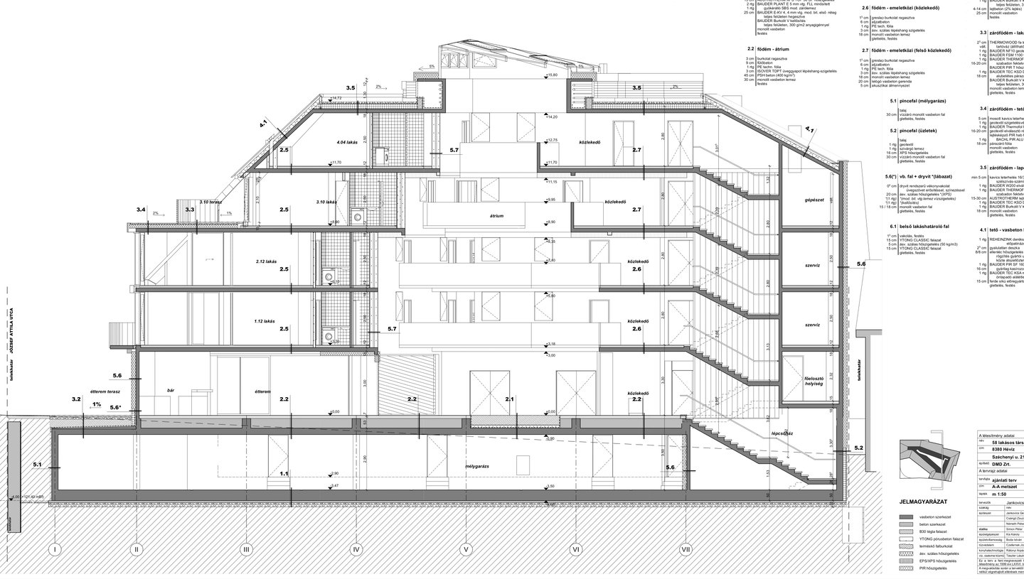
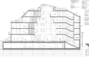
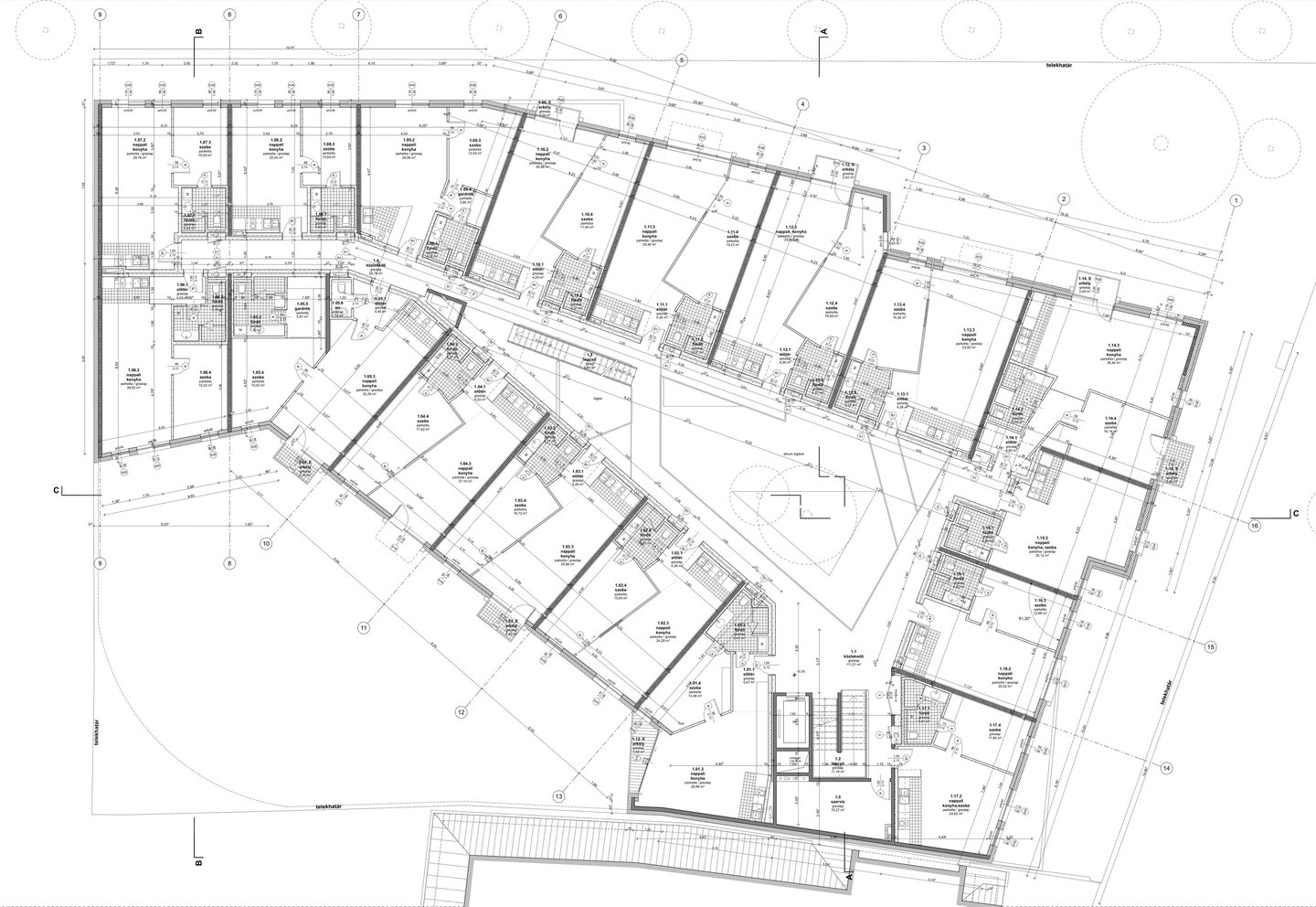
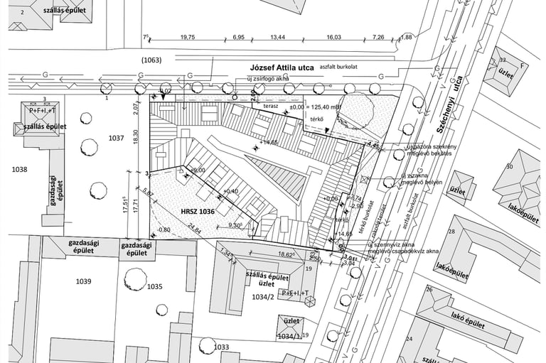
APARTMENT BUILDING
Project NR.7
HEVIZ, HUNGARY
I contributed to the Apartment Building project during my internship at an architecture office in Keszthely, Hungary, where I worked throughout the construction phase. My responsibilities included updating and correcting the 3D model according to new design revisions, assisting with floor plan modifications, and preparing execution-level and detailed construction drawings.


Architectural design of an apartment building.







